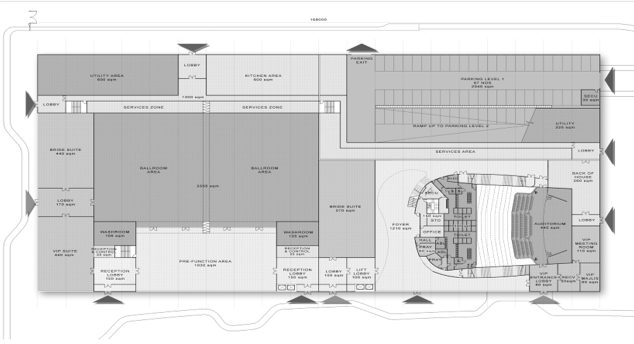
Originally this important Building was designed to be within the compound of Abu Dhabi Ladies Club, then it was decided by the Client to be located in another area for better privacy. The project comprises mainly of Ballroom 40x60m to allow for 1000 guests in addition to completely well-equipped auditorium of higher Standards for 600 seats with cafeterias and recreation areas with underground parking and services. UPA was appointed as Lead Consultant for Master Planning and Architectural/Engineering Consultancy, when the task was completed and delivered.

Location:          Abu Dhabi, UAE

Client:              Musanada

Role:                 Prime Consultant

Year:                 2009-2011

Area:                2,400 sq.m

Previous
Previous

Al Dhafra Sports Academy

Next
Next

Olympic Swimming Pool