
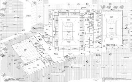
UPA had been appointed to develop Master Planning, and Architectural/ Engineering with Landscape and Infra Structural Design for completely new sports Compound and multiple outdoor all kinds open sports fields, the task of design consultancy had been completed and delivered.
Location: Abu Dhabi, UAE
Client: Abu Dhabi Sports Council
Role: Prime Consultant
Year: 2011-2013
Area: 7,400 sq.m